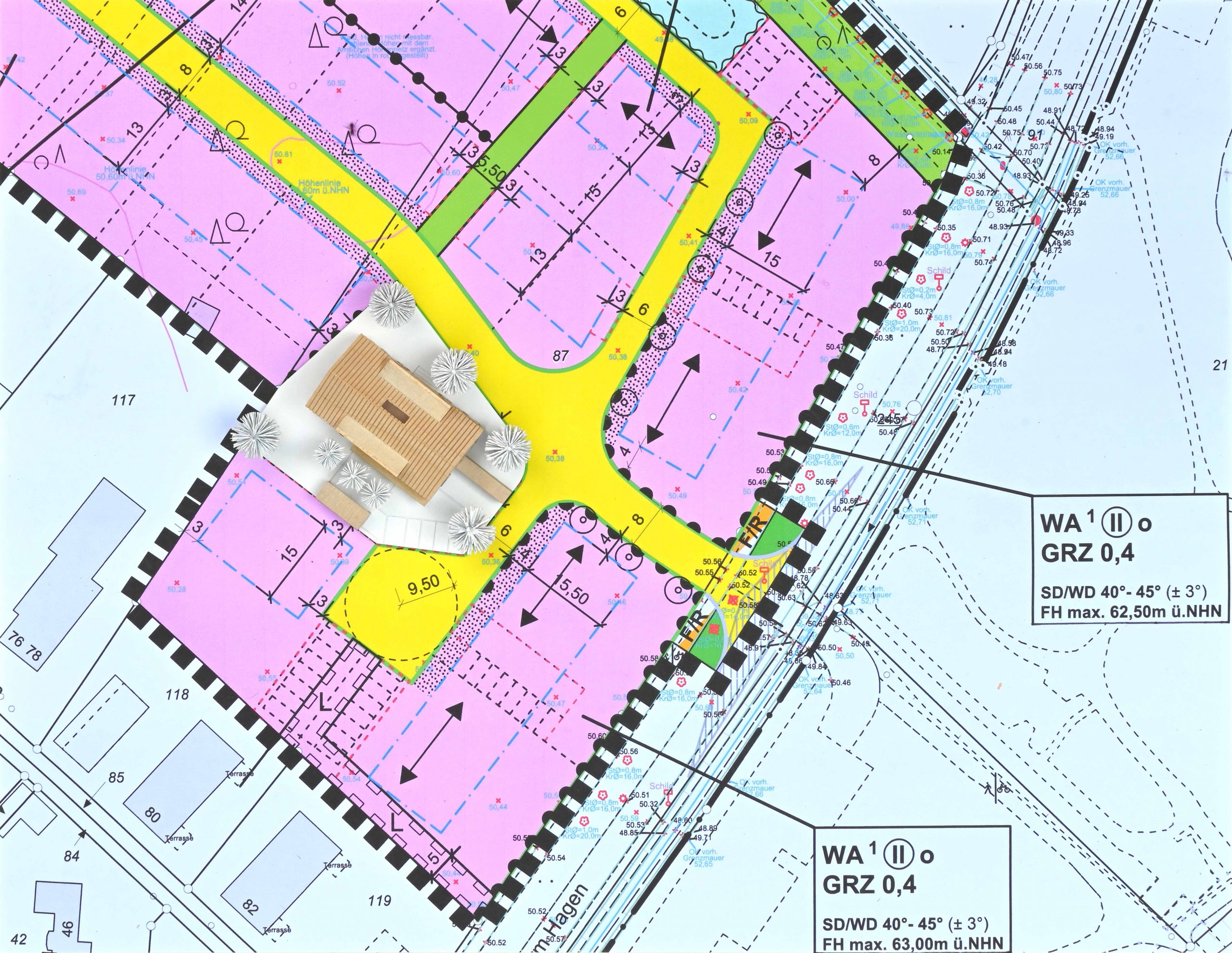
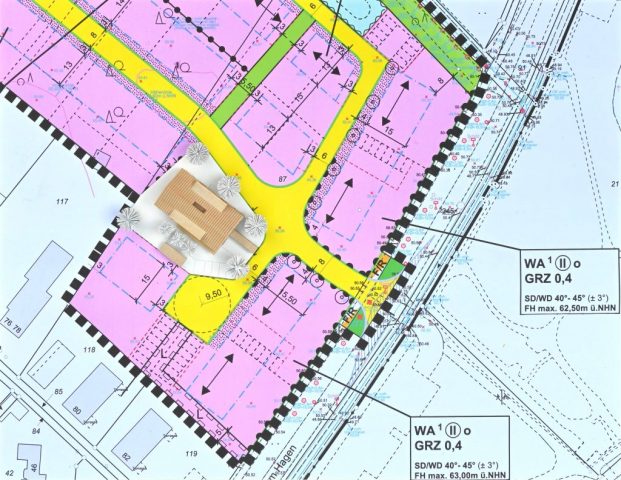
In unserem Architekturwettbewerb hat derEntwurf des Büros Scholz Partner Architekten aus Senden den 1. Preis belegt. Dieser Entwurf soll auch verwirklicht werden. Hier zeigen wir die Grundrisse und Ansichten im Einzelnen. Klick zum Vergrößern.
In unserem Architekturwettbewerb hat derEntwurf des Büros Scholz Partner Architekten aus Senden den 1. Preis belegt. Dieser Entwurf soll auch verwirklicht werden. Hier zeigen wir die Grundrisse und Ansichten im Einzelnen. Klick zum Vergrößern.